образовательные учреждения
  • Авторский коллектив: И.В. Жуков, С.И. Иванников, С.В. Бочков

  • В основе планировочного решения детского дошкольного общеразовательного учреждения на 125 мест (6 групп) лежит принцип функционального зонирования, где основные помещения групповых ячеек, специализированных помещений, сопутствующих и служебно-бытовых помещений, а также пищеблок располагаются в жесткой технологической цепочке. В здании предусмотрен бассейн. В основе объемного решения лежит принцип модульной системы, где основным модульным элементом, который позволяет компоновать объем в зависимости от конкретной ситуации на месте, а также в зависимости от количества мест в детском дошкольном учреждении. В основе конструктивной схемы лежит ж/б каркас с отдельными монолитными элементами. Наружные стены - вентилируемый фасад с облицовкой керамогранитом.
Дошкольное образовательное учреждение (концепция)
г. Москвы, Южное Чертаново, мкр.18, к 5
  • Площадь участка, га ............................................. 0.5
  • Площадь застройки, кв. м .............................1253,0
  • Общая площадь, м2 ....................................... 3862,0
  • Площадь основных технологических
  • помещений (расчетная) м2........................... 2018,0
  • Авторский коллектив: Ю.И. Филлер, А. Ю. Морозова

  • Здание представляет собой две прямоугольные 3-этажные блок-секции групповых ячеек, объединенные 3-этажным административно-хозяйственным блоком. Для достижения большей архитектурной выразительности здания в центральной части размещен двусветный зал гимнастических занятий с перекрытием, представляющим собой полуциркульный цилиндрический свод.
Детское дошкольное учреждение
Московская обл., г. Железнодорожный, мкр. «Центр-2», квартал 1, Дс-1
  • Площадь участка ..………………….............. 0,7
  • Площадь застройки, кв.м …..........1 410,00
  • Общая площадь здания, кв.м .... 4 306,10
  • в том числе:
  • надземная часть ……….......….….…. 3 227,20
  • подземная часть ............................1 078,90
  • Площадь участка, га .........................1,563
  • Площадь застройки, кв.м ............. 2515,9
  • Общая площадь здания, кв.м ....11624,4
  • Количество учащихся, чел ................ 525
  • Этажность, ……………………..........................4
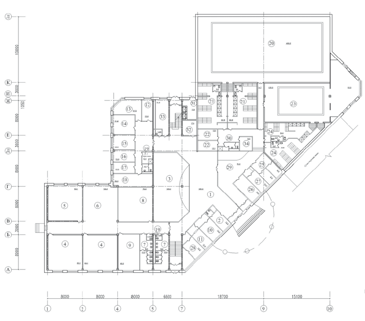
Пристройка к школе № 523
Москва, ул. Цюрупы, д. 14а
  • Авторский коллектив: М.Е. Беленя, В.С. Рыжиков, В.П. Пряникова, А.Ю. Фролова

  • Объемно-планировочное решение здания пристройки предусматривает четкое функциональное деление на различные возрастные группы: На первом этаже - 1-е классы, вестибюльные группы, администрация, два бассейна и помещения для загрузки кухни. На втором этаже - 2-4 классы, столовая на 175 мест с переходом в существующую школу. На третьем этаже - классы-кабинеты основной школы, библиотека, спортивный зал, переход в существующую школу. На четвертом этаже – учебные кабинеты старшей школы, помещения для свободного творчества.
  • Здание расположено в сложившейся жилой застройке, имеет технический этаж. Выполнено из монолитного железобетона с вентилируемым фасадом и наружной отделкой из плит цветного минерита. В здании предусмотрены физкультурный, музыкальный и компьютерные залы. Дошкольное образовательное учреждение имеет хореографический профиль, поэтому двухсветный музыкальный зал оборудован звуковой и осветительной аппаратурой. В здании предусмотрена возмож-ность доступа маломобильных групп населения, как родителей, так и воспитанников. Все входы оборудованы пандусами, предусмотрен лифт на 1000кг и ширина коридоров не менее 2м.
Дошкольное образовательное учреждение
г. Москва, ЦАО, ул. Трифоновская д. 45А, стр. 1
  • Авторский коллектив: Г.В. Масляев, Н.С. Лесная
  • Площадь участка, га ……............................... 0,535
  • Площадь застройки, кв.м..............................1154
  • Общая площадь кв.м.................................. 4620,9
  • Вместимость, места ……................................... 160
  • Этажность, .............................................................. 3
  • Сметная стоимость строительства (в ценах 2000г.), тыс.руб ........................................ 49881,64
  • Стоимость одного места, тыс. руб……....... 311,7
  • Продолжительность строительства, мес ….. 12
  • Площадь участка. га .................................................... 0.5
  • Площадьзастройки кв.м .......................................1367,0
  • Общая площадь кв.м ............................................ 3608,7
  • Площадь основных технологических помещений (расчетная) кв.м.......................................................1918,3
  • Расчетная площадь на одного ребенка м2/чел...15,3
  • Вместимость,место.....................................125 (6 групп)
  • Продолжительность строительства, мес..............9-12
  • Стоимость одного места (без благоустройства и наружных коммуникаций), тыс.руб….......................910
Дошкольное образовательное учреждение
г. Москва, Ю. Чертаново, мкр. 18, к.5
  • Авторский коллектив: И.В. Жуков, С.И. Иванников, И.А. Потапова, В.М. Комарова, М.А. Наумова, Э.А. Леончик, Е.Г. Суханова, Е.Л. Демидова, Е.Ю. Шляхтина
  • Площадь участка, га …………................................ 0.35

  • Площадь застройки, кв.м……............................ 3500

  • Этажность, эт………........................................ 6 - 10 + 2

  • Верхняя относительная отметка, м ....................45

  • Общая площадь здания, кв.м….................... 32 242

  • корпус ”А” ….................….................….................. 4 330

  • корпус ”Б” ….................….................…............... 27 912 в том числе: учебно-производственные, административные помещения корпусов “А”-”Б” кв.м……................................................................ 25 527 в том числе:
  • столовая на ................................….................160 мест
  • библиотека на ..........................…................... 96 мест
  • конференц-зал (с вестибюльной группой и вспом. помещениями) на.........................1600 мест
  • подземная автостоянка м/м….……......................139
Финансовая академия
г. Москва, САО, Ленинградский проспект д. 51, корп.1 (стр. А, Б)
  • Авторский коллектив: А.Д. Меерсон, М.Б. Ерохин, Т.В. Щетинина, Р.А. Керимов
  • Площадь участка, га ....................... 3.9
  • Площадь застройки, кв. м ...........4300
  • Общая площадь, кв.м..............10989.8
  • Строительный объем, куб.м...44220.0
  • Этажность, этажей................................3
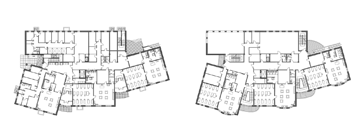
Общеоразовательная школа на 600 учащихся (24 класса)
Московская обл., г/п Московский, г. Московский, 2-й микрорайон, корп. 40
  • Авторский коллектив: Ю.И. Филлер (рук.), Ю.И. Нечаев, К.В. Мельников

  • Объемно-планировочное решение разработано в виде двух объемов (блок А и блок Б), имеющих различное функциональное назначение и соединенных 3-этажной вставкой с поэтажными сквозными коридорами, лифтом для инвалидов-колясочников, учебными и кружковыми помещениями. Блок А включает общешкольные помещения: столовую, спортзалы, актовый зал, библиотеку, медпункт, административные помещения и учебные мастерские. В Блоке Б размещены все основные учебные помещения: классы, кабинеты, лаборатории с учительской и рекреационными помещениями, а также блок начальной школы с автономным входом, вестибюлем и гардеробом.
  • Площадь участка, га……………............3,3
  • Общая площадь здания, кв.м…..19000
  • Площадь застройки, кв.м………..…6582
  • Этажность (наземные), эт……….....2-3-4
  • Количество учащихся (расчетный показатель), чел…............................1000
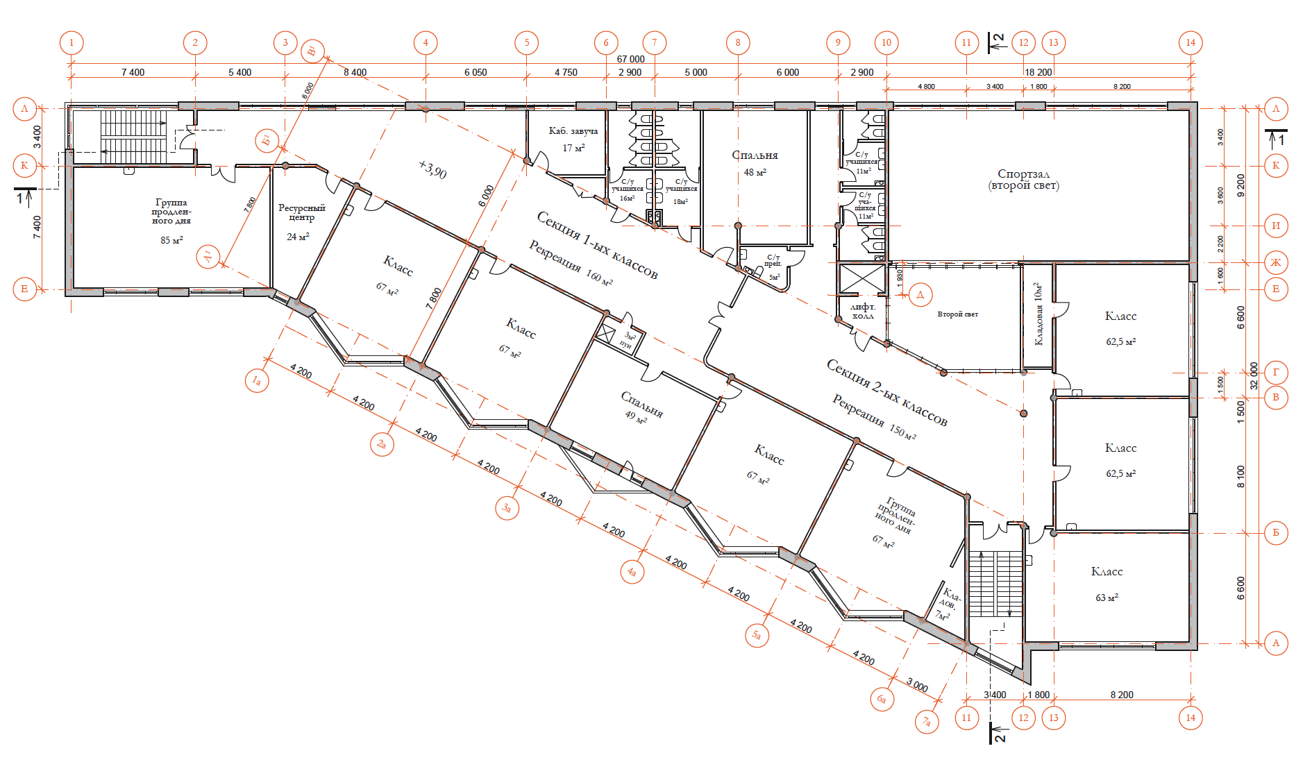
Общеобразовательная школа на 1000 учащихся
Конкурс: Архитектурно-планировочная концепция
Московская обл., Одинцовский район, пос. ВНИИССОК
  • Авторский коллектив: И.В. Жуков, С.И. Иванников, М.Н. Белавинцева, С.В. Бочков, Э.А. Леончик, Е.Г.Суханова

  • Здание общеобразовательной школы предназначено для размещения учебно-воспитательного учреждения на 40 классов (1000 учащихся). Объемно-пространственное решение здания школы предусматривает зонирование по возрастным группам (разделение учебного процесса старших и младших школьников):
----- учебный блок младших классов
----- учебный блок средних и старших классов,
----- блок общешкольного центра
----- автономный спортблок с бассейном (2 ванны).
Блок начальных классов
(пристройка к образовательной школе № 396)
г. Москва, ул. Новорогожская, д.18, стр. 1
  • Авторский коллектив: Ю.Н. Коновалов (рук.), А.Л. Лущеко, Б.С. Поз

  • На территории общеобразовательной школы № 396 запроектирован отдельно стоящий, функционально автономный от существующей школы 3-этажный объем Блока начальных классов (БНК). Генеральный план школы решается комплексно: вокруг проектируемого здания БНК и вокруг существующей школы запроектирован круговой пожарный проезд. Между проектируемым БНК и существующим зданием школы образуется благоустроенный двор, с которого запроектирован главный вход в блок начальных классов.
  • На первом этаже БНК расположены общешкольные помещения: вестибюль с гардеробом, кухня со столовой, медицинский блок, спортзал. На втором этаже расположены учебные секции 1 и 2 классов. На третьем этаже - учебные секции 3-4 классов. Высота помещений в свету - 3.6 м, спортивного зала - 6 м.
  • «Дворовый» фасад решен цветовой полосой с эркерами, необходимыми для правильной ориентации учебных помещений. Предполагается озеленение кровли спортивного зала и использование вертикального озеленения. Конструктивная схема здания - наружные монолитные стены и внутренние колонны. Отделка фасада - штукатурка по утеплителю или система вентфасада.
  • Расчетная площадь на одного ребенка м2 чел...........16,14
  • Вместимость, место...............................................................125
  • Продолжительность строительства, мес....................... 9-12
  • Стоимость одного места (без благоустройства и наружных коммуникаций), тыс.руб ................................. 980
  • подземная часть ............................1 078,90
  • Этажность здания, эт………........................ 3
  • Общая площадь на одно место, кв.м.........................................................15.00
  • Вместимость, место …....…. 220 (12 групп)
  • Авторский коллектив: И.В. Жуков, С.И. Иванников, И.А. Потапова, В.М. Комарова, М.А. Наумова, Э.А. Леончик, Е.Г. Суханова, Е.Л. Демидова, Е.Ю. Шляхтина
  • Площадь участка школы, га ……......…1.13
  • Площадь застройки, кв. м ……...........1550
  • Общая площадь здания, кв. м .…..… 6550
  • Этажность, эт. …................... 3 надземных
  • …………………....................….. + 1 подземный
  • Вместимость, уч ……………..........………...300
  • Авторский коллектив: И.М. Коробков (рук.), К.В. Беручан, Е.А. Авдеева, Е.М. Семенова

  • На первом этаже здания размещены: вестибюль, помещение охраны, кружковые комнаты, медпункт, санузлы. На втором этаже - кружковые комнаты, зал на 345 мест с артистическими, фойе с балконом, буфет и помещения администрации. На третьем этаже находятся студия звукозаписи, помещения администрации. Имеется также выход на эксплуатируемую крышу.

  • Этажность здания, эт..................... 2-3
  • Количество мест в зале, место....345
Дом технического творчества
г. Москва, Кожухово, мкр. 6-7-8, корп. 23