малоэтажная застройка
  • Авторский коллектив: А.М.Половников (рук) , Ю.П. Першин, И.В. Марченкова, С.М. Сорокин
Малоэтажные дома для многодетных семей
г. Москва, р-н Митино, с. Рождествено
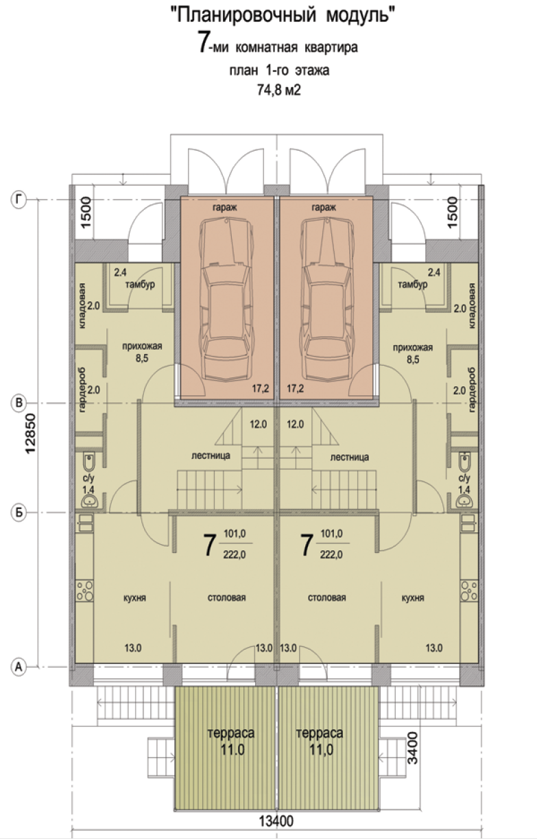
  • Малоэтажные жилые дома на 36 квартир. Все квартиры 6-7 комнатные, расположены в 3-х уровнях. Для каждой квартиры предусмотрены встроенный гараж, 3 санузла, кухня - столовая, терраса, выходящая в сад, а также предусмотрена возможность увеличения количества комнат и обустройство чердака.
  • Территория участка...........1,39 ГА
  • Площадь квартиры.............222 м2
  • Общая площадь квартир. 7992 м2
  • Гаражи (встроенные в дома)....36 шт.
  • Кол-во квартир.....................36 шт.
  • Открытые автостоянки.........13 шт.
Проекты малоэтажных жилых домов
г. Москва, р-н Южное Бутово, м-н 5-5а
  • Авторский коллектив: Ю.И.Нечаев, Н.И.Губарева

  • Проекты 2-квартирных жилых домов разрабатывались в программе Департамента жилищной политики и жилого фонда г. Москвы по переселению жителей сносимых домов частного сектора в Южном Бутово. Строительство данных домов рассчитывалось на участках площадью 0,1 га и 0,08 га на квартиру. Сблокированные квартиры согласно заданию соответствуют второй категории комфортности и имеют планировочные решения, рассчитанные на возможность их объединения. Все типы домов согласно заданию без гаражей, с возможной парковкой на придомовом участке.
  • Двухэтажный 2-квартирный жилой дом:
  • Квартиры 2 четырёхкомнатные
  • Общая площадь, кв.м 119,78 на кв-ру
  • Площадь застройки, кв.м 186,34
Малоэтажная застройка для многодетных семей
г. Москва, р-н Строгино, 2-я Лыковская
  • Авторский коллектив: Соловьев В.М., Болховитинова, А.Ю., Дюба Е.Ю.,Тананова Е.А., Тютина Т.К.

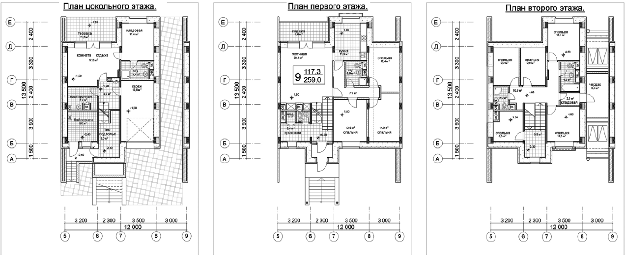
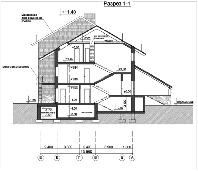
  • Застройка состоит из 3-этажных блокированных домов для многодетных семей. Каждая квартира имеет отдельный вход и подъезд для автомобиля. Планировка квартир предусматривает их зонирование и возможность объединения пространства кухни и гостинной.
  • Наружные стены - керамический облицовочный кирпич 120 мм. кладка из пеноблоков 500 мм, местами монолит. Внутренние несущие стены - монолитный железобетон.
  • Школа на 132 учащегося
  • Площадь застройки, кв.м…………..1612
  • Общая площадь здания, кв.м….....400

  • Клуб со зрительным залом на 150 мест, библиотекой и кружковыми
  • Площадь застройки, кв.м………....1236
  • Общая площадь здания, кв.м……1189

  • Детский сад на 60 мест
  • Площадь застройки, кв.м……….....1315
  • Общая площадь здания, кв.м…....2809
Общественный центр
Рязанская обл., Клепиковский район, с. Криуша
  • Авторский коллектив: Ю.И. Филлер (рук.), Ю.И. Нечаев, А.Ю. Морозова, Н.М. Юрченко, Т.Н. Суханова, К.В. Мельников, В.М. Шеханов, В.Б. Карганов, К.М. Коробов, С.Ю. Лебедев, М.Н. Тюрин, Р.М. Лукьянова, А.А. Кондрашов, Н.Г. Егорова, Т.Н. Ковалева, Т.Н. Кузнецова, К.П. Стремов

  • Общественный центр занимает центральную часть села Криуша и включает административно-торговый корпус с пожарным депо и пекарней, клуб со зрительным залом, библиотекой и кружковыми помещениями, школу на 132 учащихся, дошкольное образовательное учреждение на 60 мест, больницу на 10 коек, поликлинику на 25 посещений, памятник, а также комплекс необходимых инженерных сооружений.
  • Административный корпус, клуб и школа формируют площадь, на которой предусмотрено размещение памятника воинам Отечественной войны.
  • Одноэтажный 2-квартирный жилой дом (блокировка со смещением):
  • Квартиры 2 трёхкомнатные
  • Общая площадь, кв.м 77,6 на кв-ру
  • Площадь застройки, кв.м 226,8
  • Эта площадь может быть использована для размещения открытой танцплощадки, либо декоративного бассейна. Кроме того, на перспективу предусмотрено строительство жилого дома для медперсонала, блока пристройки к административному корпусу пункта охраны общественного порядка и ФОКа с универсальным игровым залом и двумя плавательными бассейнами.


  • Все корпуса имеют необходимые составляющие элементы благоустройства: автостоянки, в том числе с местами для инвалидов, мусоросборники, игровые площадки для детей, цветники, высокую и низкую зелень, пожарные проезды у каждого из корпусов со всех сторон шириной не менее 6,0 м.
  • Все корпуса имеют необходимые составляющие элементы благоустройства: автостоянки, в том числе с местами для инвалидов, мусоросборники, игровые площадки для детей, цветники, высокую и низкую зелень, пожарные проезды у каждого из корпусов со всех сторон шириной не менее 6,0 м.
  • Административно-торговый корпус c пожарным депо и пекарней
  • Площадь застройки, кв.м…………….1650
  • Общая площадь здания, кв.м……….2 925

  • Больница на 10 коек
  • Площадьзастройки, кв.м………….1070
  • Общая площадь здания, кв.м…….906

  • Поликлиника на 25 посещений в смену
  • Площадь застройки, кв.м………......1070
  • Общая площадь здания, кв.м….......906